Hoe vind je een goede architect in Portugal?
Via via kwamen we uit bij twee jonge architecten. Beiden hadden wel zin in een wedstrijd, dus zo gezegd zo gedaan.
En waar Ines toen mee kwam... waanzinnig mooi!
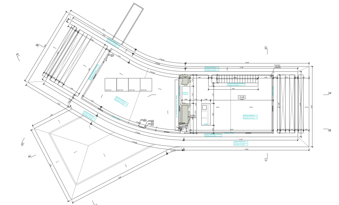
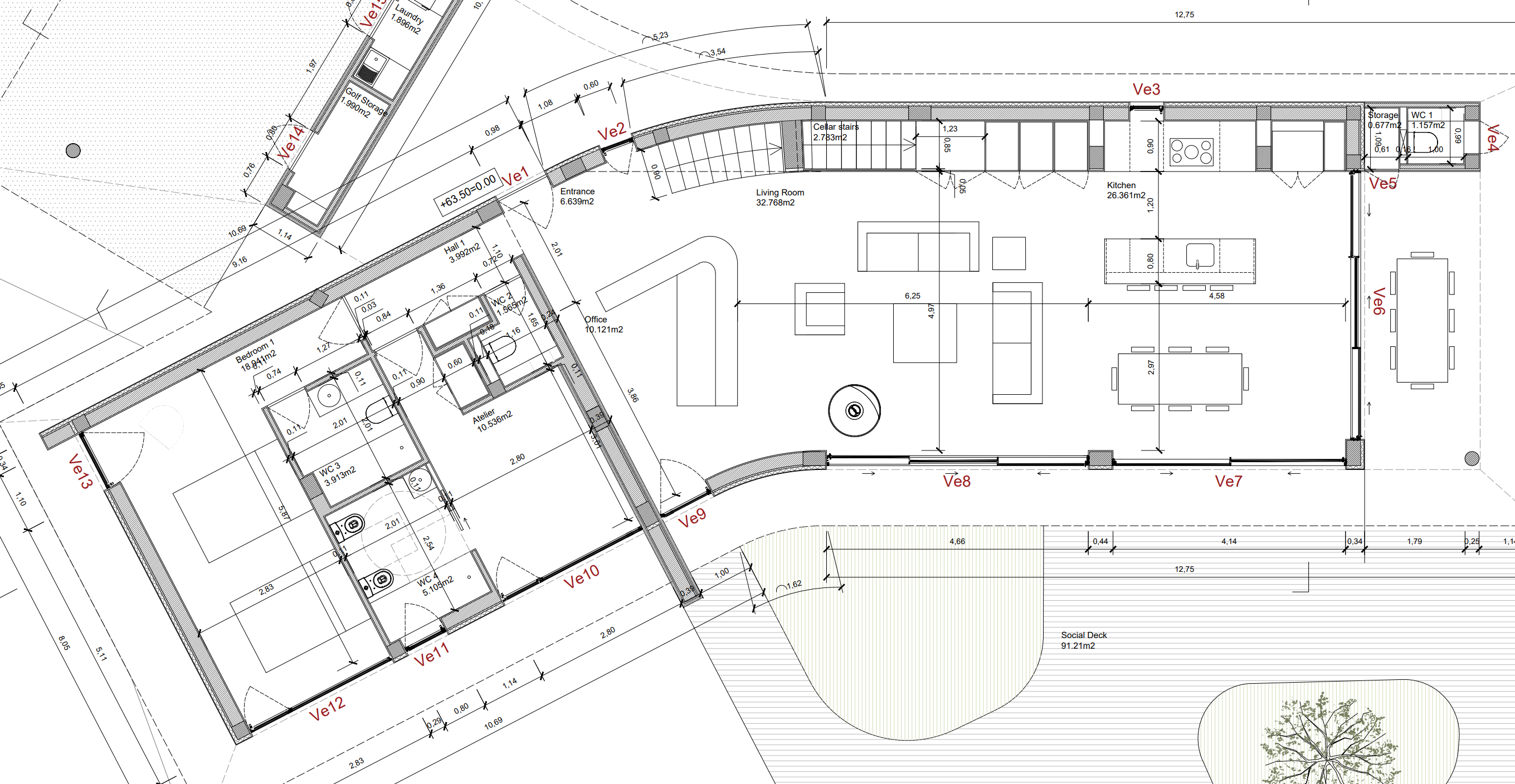
We noemen het villa Ypsilon. Vanuit de lucht gezien is het nl een Y vorm; de begane grond buigt af naar links, de eerste verdieping buigt af naar rechts. Onder de oversteek die daarmee is gecreëerd hebben we een overdekte - lees schaduwrijke - parkeerplaats voor auto's.
En op het dak van de begane grond ontstaat een fantastisch balkon. We noemen het ons yoga deck 🙂
